SOLD
$728,000
This is a wonderful Santee home in a fantastic neighborhood. Remodeled kitchen is open concept with stainless steel appliances, solid surface counters and cabinetry. Recessed lighting, ceiling fans, updated bathrooms, and dual paned windows. Dining area opens to the back yard covered patio, a great place to BBQ. Near all: SR52, SR125, Santee Lakes, Mission Gorge Road, SR67.
MLS#
230017644
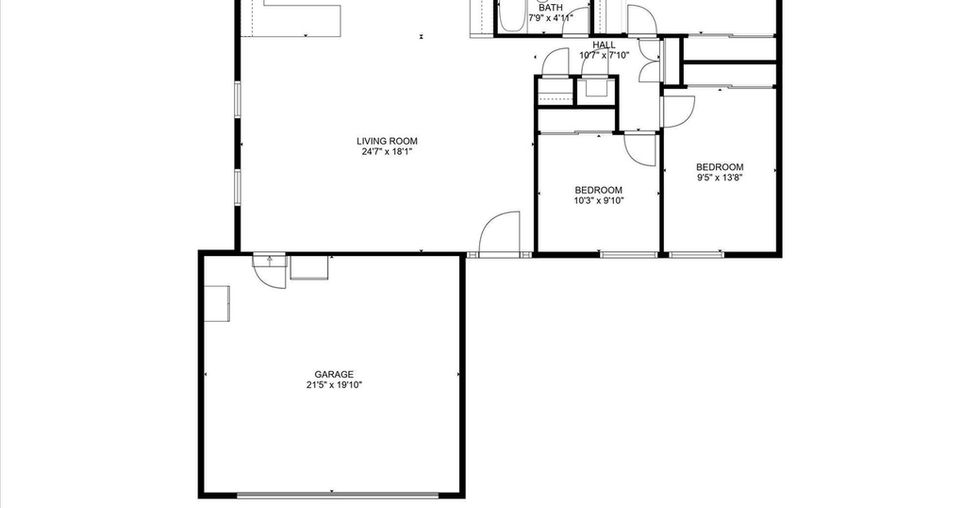
Property Details
Property Type
Bedrooms
Bathrooms
Est. Sq. Ft.
Year Built
Represented:
Detached
3 BR
2 BA
1,305
1972
Seller
Property Location
9357 Dempster Drive, Santee, CA 92071
Property locations as displayed on any map are best approximations only and exact locations should be independently verified. All information deemed accurate but not guaranteed. Buyer to verify all before close of escrow. If your property is currently listed for sale, this is not intended as a solicitation.












